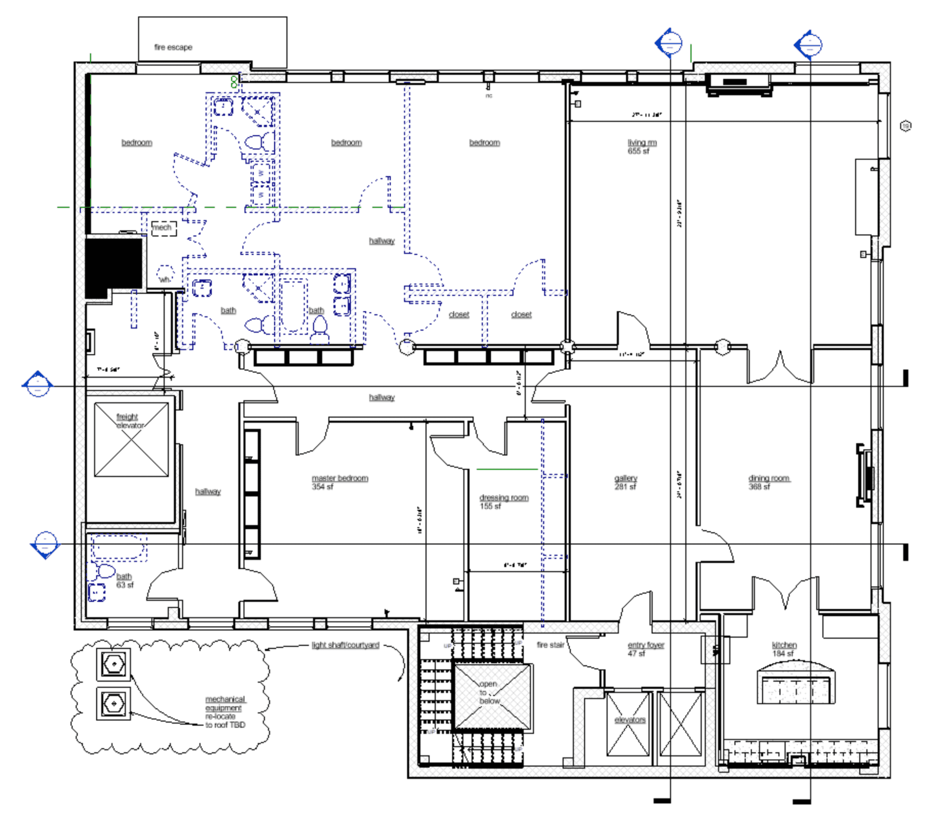
Architectural Drafting
Architectural Drafting in Hartford, Providence, RI and New London
The Peaslee Architect, P.C. architectural drafting team is headed by a qualified architect who manages every phase from the planning stages right down to the last detail prior to delivery of your drafting documents. For residential or commercial projects of any size, our in-house experts provide accurate drawings using advanced CAD industry software that incorporate each aspect of your construction project in Hartford.
Get in Touch with Us
For Any Architecture Related Inquiries
For more information, give us a call at (718) 383-8909 or email us at design@stuartpeaslee.com










